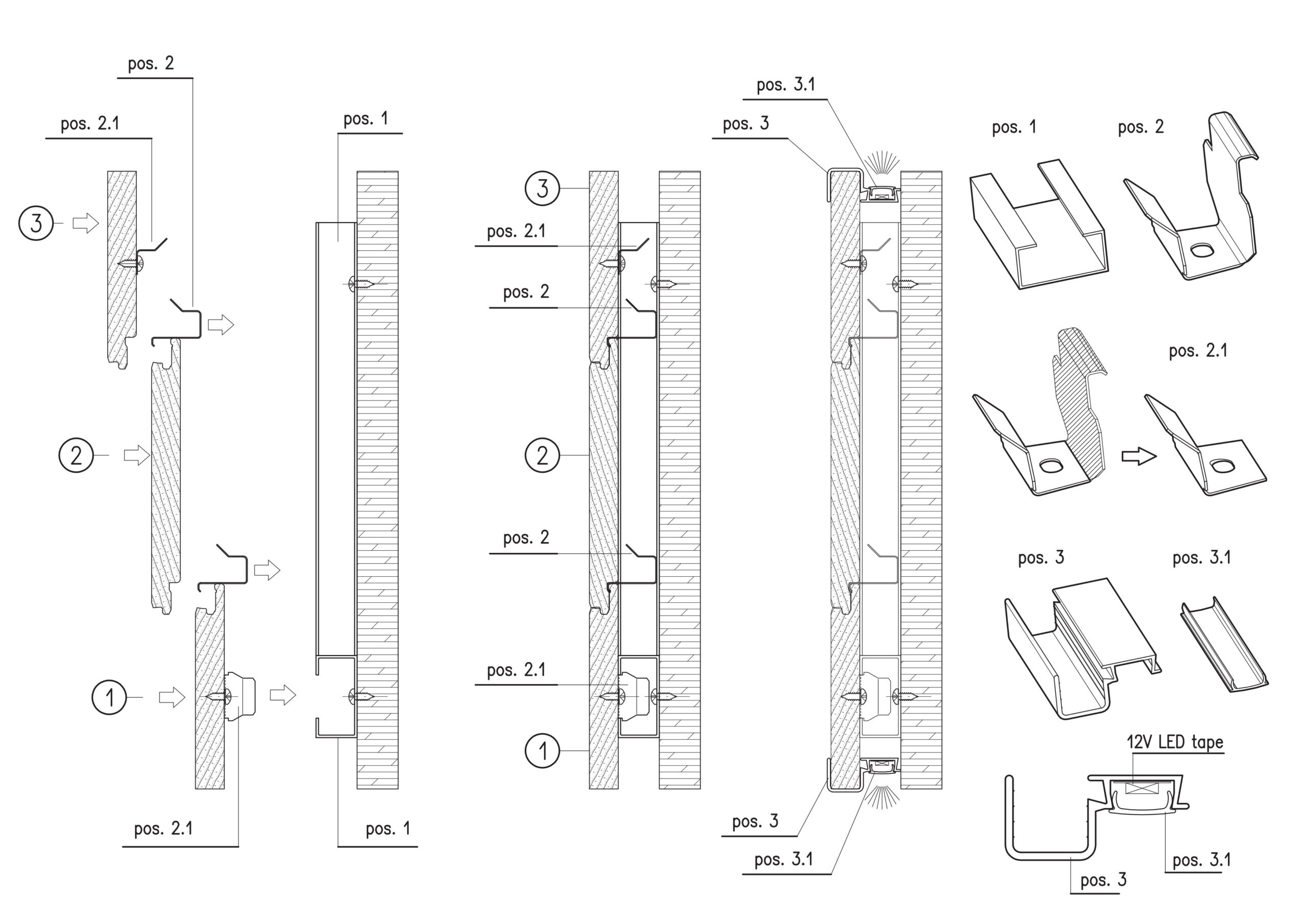
EDELSTAHLKLAMMERN
EDELSTAHLHALTER
EDELSTAHLHALTER 1, 2, 3
WNr. 1.4404; AISI 316L
Material Dicke – 3mm
EN 1090-1
Technische Zeichnungen kann hier eingesehen
3D-Modell Edelstahlhalter 2 und technische Zeichnungen kann hier downloaden
Technische Zeichnungen
Edelstahlhalter 1
Technische Zeichnungen
Edelstahlhalter 2
Technische Zeichnungen
Edelstahlhalter 3
PROFILE
L – PROFIL
Werkstoff – ENAW – 6063 – T66
Norm EN 755 – 9
L – profil
Technische Zeichnungen kann hier eingesehen
3D-Modell und technische Zeichnung kann hier downloaden
T – PROFIL
Werkstoff – ENAW – 6063 – T66
Norm EN 755 – 9
T – profil
Technische Zeichnungen kann hier eingesehen
3D-Modell und technische Zeichnung kann hier downloaden
CLIPS FÜR STECKSOCKELLEISTEN
Clips für stecksockelleisten – D1
Norm EN 1090 – 1
Technische Zeichnungen kann hier eingesehen
3D-Modell und technische Zeichnung kann hier downloaden
Clips für stecksockelleisten – D3
Norm EN 1090 – 1
Technische Zeichnungen kann hier eingesehen
3D-Modell und technische Zeichnung kann hier downloaden































